根据推杆式锻造加热炉炉底工况,以及炉底工作环境;高温耐磨浇注料的性能特点是强度高,中温强度不下降反而显著升高,耐磨性能好,显气孔率低,低熔点物质少。因此,抗渣侵蚀性能强,热震稳定性能优异,能满足推杆式锻造加热炉的使用要求。着重介绍了高温炉底材料的组成和基本性能。该材料在相当宽的温度区域内具有很高的抗折强度、耐压强度、抗侵蚀能力、热震稳定性和高温耐磨性能。
某厂现有5台推杆式锻造加热炉(技术参数见表1),用于车辆部件的锻造加热。在实际生产中,该设备存在炉底磨损严重,维修周期短的问题(一般仅3~5个月),停产维修时间至少1个星期,不仅增加了生产成本,而且影响正常生产。该厂使用了我厂不定形高温耐磨浇注料后,使用寿命达到了30个月以上,保证了正常生产,节约了生产成本,取得了良好的经济效益,本文着重介绍了高温耐磨炉底材料的组成和基本性能。
表1 推杆式锻造加热炉技术参数

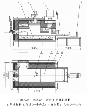
1 推杆式锻造加热炉
推杆式锻造加热炉(见图1),通过炉端的气动推杆将工件断续地推入炉膛内,炉膛分为加热段和预热段,炉气温度分别为1350℃和1000℃,工件通过互推依次由预热段进入加热段,当工件加热到锻打温度(1300℃)时,即可出炉锻打,此炉型与圆柱式锻造加热炉相比较,具有热效率高、金属烧损小、生产连续等优点,但是因炉子是间歇式作业,且炉温高,工件是互推进入炉内,工件与炉底的摩擦力大,炉内温度不均匀,因此,要求炉底材料在相当宽的温度区域内具有很高的抗折强度、耐压强度、抗渣浸能力、热震稳定性和高温耐磨性能。

图1 推杆式燃气加热炉
2 问题的分析
该厂以前先后采用高铝砖、镁砖、镁铬砖、磷酸高铝混凝土、作为炉底材料,都有高温耐磨性能差、抗渣浸能力差的缺陷。采用砖砌炉底时,因炉子作业制度为间隙式,炉底单面受热,砖的表面易剥落,形成阶梯孔洞,摩擦阻力增大,造成工件进炉困难。而进一步磨损炉底、造成炉底报废;磷酸高铝混凝土中温(<1100℃)耐压强度高。但高温时因有部分液相生成而使高温耐磨性能低,炉底易磨成凹面而损毁。
3.高温耐磨浇注料的基本组成
高温耐磨浇注料由骨料、粉料、结合剂、超微粉以及外加剂组成,外加水量为5%~7%。
耐火骨料:在高温耐磨浇注料中,耐火骨料起骨架作用,是其重要组成部分,耐火骨料一般不用破碎后的统料,而是采用多级颗粒级配,高温耐磨浇注料选用白刚玉为骨料,粒度为8~0.088mm。
结合剂:结合剂采用烧结氧化铝水泥。
超微粉:超微粉选用α-Al2O3,粒径<5um。
外加剂:高温耐磨浇注料的外加剂有分散剂和氧化铝耐火纤。掺加适量的分散剂,可降低耐火浇注料的水用量,提高其流动性,从而改善浇注料的性能。氧化铝纤维选用结晶质纤维,由于其晶核的作用有利于二次莫来石的形成和发育,增强效果显著。
外加水量:为保证拌和料和易性,用水量越少越好,使浇注料硬化后,气孔少,组织结构致密。
4.高温耐磨材料的基本性能
通过反复实验,选择出合理的优化配比,选取了比较理想的外加剂,采用了合理的升温曲线和烧结温度,研制出了性能优良的高温耐磨浇注料。经检测,其性能指标见表2。
表2 高温耐磨浇注料的基本性能

5.结语
高温耐磨浇注料的性能特点是强度高,中温强度不下降反而显著升高,耐磨性能好,显气孔率低,低熔点物质少。因此,抗侵蚀性能强、热震稳定性能优异,能满足推杆式锻造加热炉的使用要求。